Контакты:
Амазонка бай
Телефоны:
Режим работы:
  • Пн-Пт: 09:00 - 18:00
  • Сб-Вс: 24/7
Принимаем заказы через корзину круглосуточно
Адрес и схема проезда:
  • г Минск, ул.Горовца 32
  • e-mail: zakaz@amazonka.by
Посмотреть схему проезда
Телефоны:
Амазонка бай
Каталог товаров Меню
Список товаров

Твердотопливный котел РАТОН КС-ТГВ-16

  • Вес: 151 кг.
Артикул: 1238064
  • 0 BYN Выгода -1796 BYN
  • 1 796 BYN
    Под заказ 3 дня

Предложите свою цену

dollar-account
Нашли дешевле?
Гарантия 30 месяцев
  • Характеристики

    Производитель   Ратон
    Площадь обогрева, м²   160
    Топливо   Дрова
    Материал топки   Сталь
    Толщина стали, мм   3
    Страна   Беларусь
    Гарантия мес   30
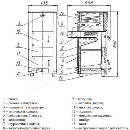
    Габариты (ВхШхГ)   1190х435х698
    Вес, кг   151
    Варочная плита   Нет
    Подключение дымохода   сзади
    Тип   Двухконтурный
    Тип котла   Естественная тяга
    Установка   Напольный
    Глубина топки см   30
    Длительность горения, ч   6-8
    Вентилятор   Опция
    Регулятор тяги   Опция
    КПД   77
    Мощность кВт   16
    Количество контуров   Одноконтурный
  • Описание

    Твердотопливный котел РАТОН КС-ТГВ-16 от компании Ратон представляет собой надежное и эффективное отопительное устройство для дома или дачи, спроектированное с учетом современных стандартов качества и экономичности. Произведенный в Беларуси из высококачественной стали толщиной 3 мм, этот котел обеспечивает долгий срок службы и надежную работу.

    Котел предназначен для обогрева помещений до 160 квадратных метров, что делает его идеальным выбором для средних по размерам загородных домов или коттеджей. Габариты котла составляют 1190х435х698 миллиметров, а вес достигает 151 килограмма, что обеспечивает стабильность и удобство в установке.

    Топливом для котла служат дрова, а установка осуществляется на полу, что делает его удобным и практичным для эксплуатации. Глубина топки составляет 30 сантиметров, что позволяет использовать дрова длиной до 400 миллиметров. Длительность горения колеблется в пределах 6-8 часов, обеспечивая экономичное потребление топлива.

    Котел оснащен двумя контурами, что позволяет использовать его для одновременного обогрева помещений и подачи горячей воды. Тип котла — естественная тяга, что способствует стабильному и экономичному сгоранию топлива. Опционально предусмотрены вентилятор и регулятор тяги, что позволяет настраивать работу котла под конкретные условия эксплуатации и требования пользователя.

    КПД котла составляет 77%, что обеспечивает высокую эффективность отопления и экономию затрат на топливо. РАТОН КС-ТГВ-16 — это отличное решение для тех, кто ценит надежность, экономичность и комфорт в обогреве своего жилища, обеспечивая при этом экологически чистое использование природных ресурсов.
    Твердотопливный котел РАТОН КС-ТГВ-16 купить в Орше с доставкой и рассрочкой платежа.
  • Отзывы

    Имя:
    Прикрепить изображения
    Вопросы и Ответы:
    Имя:
    E-mail:
    Прикрепить изображения

    0 Вопросов
  • Условия доставки и оплаты

    Условия доставки Твердотопливный котел РАТОН КС-ТГВ-16 в Орша
  • С этим товаром покупают

Гарантия и возврат

Амазонка бай реализует более 10 000 товаров надлежащего качества от проверенных поставщиков, зарекомендовавших себя как ТОП-производители. Гарантия производителя распространяется на гарантийный талон либо иной другой документ его заменяющий. 

В случае возникновения гарантийного случая необходимо обратиться в сервисный центр или в наш отдел по рекламациям.

Какие гарантийные сроки?

В основном на продукцию распространяется гарантия от 12 месяцев до 25 лет в зависимости от срока, предусмотренного производителем. Данная информация указана в гарантийном талоне либо ином заменяющем его документе.

За более подробной информацией и разъяснениями можете обращаться к нам по телефону +375 (29) 8000 226. Всегда рады помочь!

Какая информация должна быть в гарантийном талоне?

Гарантия содержит информацию:

  • дата реализации;
  • модель товара;
  • серию и номер.

В талоне проставляется штамп торгующей организации и печать ответственного лица.

Легкий возврат товара

Возврат некачественного товара.

Для возврата приобретенного недоброкачественного товара будет необходимо:

  • связаться по телефону +375 (29) 8000 226 с отделом по рекламациям, объяснить причину поломки;
  • предоставить документы, свидетельствующие о приобретении: кассовый чек, товарный чек, ТН, договор поставки и иные документы, доказывающие факт приобретения данного товара;
  • оформление возврата некачественного товара  - заявление;
  • согласование возврата денежных средств либо замену товара.
Требования потребителя о соразмерном уменьшении покупной цены товара ненадлежащего качества, возмещении расходов на устранение недостатков товара потребителем или третьим лицом, расторжении договора розничной купли-продажи и (или) возврате уплаченной за товар ненадлежащего качества денежной суммы подлежат удовлетворению продавцом (изготовителем, поставщиком, представителем) незамедлительно. В случае, если удовлетворить требования потребителя незамедлительно не представляется возможным, максимальный срок для удовлетворения требований потребителя не может превышать семи дней со дня предъявления соответствующего требования, а при необходимости проведения экспертизы – четырнадцати дней.

Возврат товара надлежащего качества.

В случае возврата доброкачественного товара, потребитель осуществляет возврат в течение 14 календарных дней с момента приобретения. Товар должен быть в заводской упаковке, без повреждений, содержать все сопроводительные документы (гарантийный талон, паспорт изделия и т.д.) и иметь такой же вид, как при покупке.
Обращаем Ваше внимание, что возврат возможен не на все категории товаров. Перечень непродовольственных товаров надлежащего качества, не подлежащих обмену и возврату, утвержден Постановлением Совета Министров Республики Беларусь № 778 от 14.06.2002 года. (Изделия под заказ, отрезные товары)
Остались вопросы? Позвоните нам для уточнения +375 (29) 8000 226.

Простая замена товара

Я могу вернуть доброкачественный товар?

Да. Если Вы приняли решение вернуть качественный товар, такая возможность действует в течение 14 календарных дней со дня приоретения. Внимание! Товар должен иметь продажный вид как при покупке, без следов эксплуатации.
Однако вернуть можно не все покупки. Перечень непродовольственных товаров надлежащего качества, не подлежащих обмену и возврату, утвержден Постановлением Совета Министров Республики Беларусь № 778 от 14.06.2002 года. Обмен и возврат продукции осуществляется на территории продавца.

Как вернуть недоброкачественный товар?

Для возврата товара ненадлежащего качества требуется:

  • обратиться к торговой организации;
  • предъявить документы, подтверждающие покупку;
  • обязательно предоставить заявление на возврат;
  • обговорить возврат средств с менеджером.

Необходимо некачественный товар вернуть по месту расположения продавца.

Кредит и рассрочка товара

Введите ваши данные